Trustpilot
Skip to content

Industrial Premises – For Sale

Status: Under Offer
101 Smithycroft Road, Glasgow, G33 2RH
Offers From, £275,000
  • Sizes:
  • 5199 sqft,
  • 483 ㎡

Type: Purchase

Under Offer

Summary

  • Warehouse accommodation with 5.95m eaves.
  • Electric roller shutter access.
  • Close to M8 Motorway.
  • Suitable for a range of industrial, trade counter or distribution uses.
  • Offers over £275,000 invited.

Location

The property is situated on the western side of Smithycroft Road within the Riddrie area of Glasgow’s East End, approximately 2.6 miles east of Glasgow City Centre. The location offers convenient access to the M8 motorway with onward connectivity to the M74 and Scotland’s central belt motorway network.
The surrounding area is predominantly residential, with a nearby retail parade, and the subjects benefit from established road links and public transport connections including Alexandra Parade and Carntyne railway stations.

Description

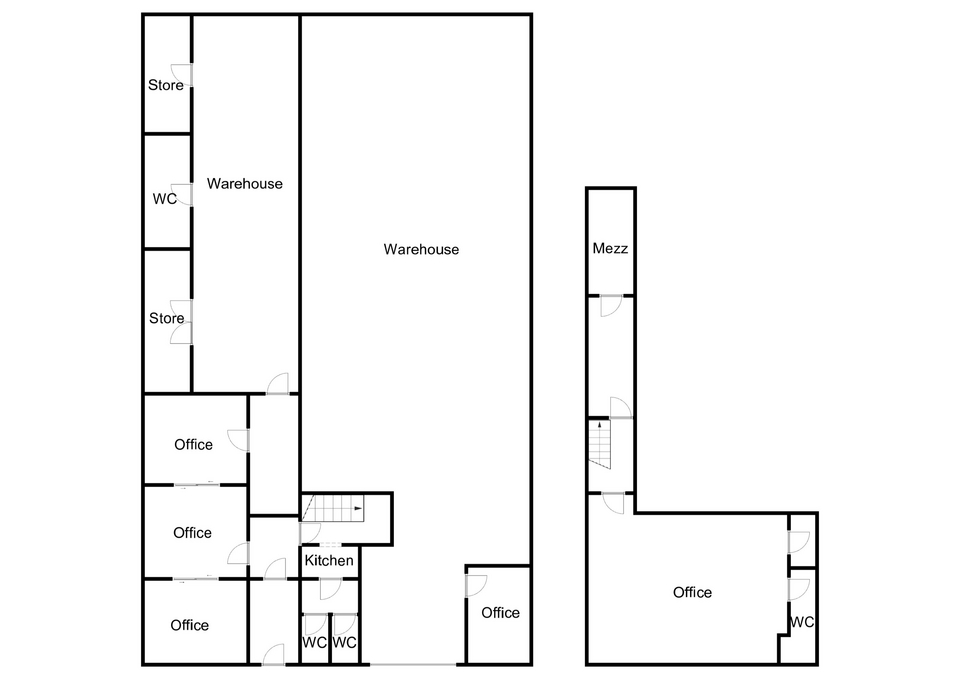
The subjects comprise a semi-detached industrial premises with ancillary office accommodation and a secure shared yard.
The warehouse is of brick construction under a pitched roof with internal timber panelling, benefitting from good natural light via translucent roof panels with concrete screed floor.
There is a single storey extension to the left hand side with a mono pitched roof that has been recently renewed. The extension contains an office/reception area and has been recently refurbished with new carpets, windows and electric heaters.
The warehouse benefits from electric roller shutters and eaves height of approx. 5.95m
Access to the secure tarmacked shared yard is via a private road directly from Smithycroft Road.

Downloads

Floor Plans: Download Plan
Brochure: Download

Want to know more? Fill in the form and a member of our team will be in touch soon.

Contact Details

Branch: Glasgow

Contact: Claire Hutton

Telephone: 0141 332 8615

Email: claire.hutton@dmhall.co.uk

Back to Properties

Let us support you with all your property requirements.

Get in touch today

Skip to content