Skip to content

For Sale – Development Opportunity, 10 George Street, Oban PA34 6SB

Status: For Sale
10, George Street, Oban, PA34 5SB
Offers Over, £250,000
  • Sizes:
  • 4618 sqft,
  • 429 ㎡

Type: Purchase

For Sale

Summary

  • Former aparthotel in Oban town centre.
  • Residential development opportunity.
  • Excellent transport connections.
  • Offers over £250,000 invited.

Location

The subjects are located on the south side of Georges Street within Oban town centre. Oban is the administrative and commercial centre of Argyllshire, the town being a gateway to the isles. The ferry terminal is located within a short distance.

Glasgow lies approximately 91 miles south via the A85 and A82 trunk roads. Oban railway station, providing a direct link to Glasgow City Centre is within 4 minutes’ walk.

The immediate surrounding area is mixed in nature with predominantly commercial premises on the ground floor and residential dwellings on upper floors.

Nearby occupiers include Waterstones, Gelatoburger, Gordons’ Chemists and Palace Hotel.

The approximate location of the subjects is shown on the appended street plan.

Description

The subjects comprise first floor premises previously used as an aparthotel, within a four-storey tenement style building of sandstone construction and surmounted by a pitched roof.

The building is Category ‘B’ Listed.

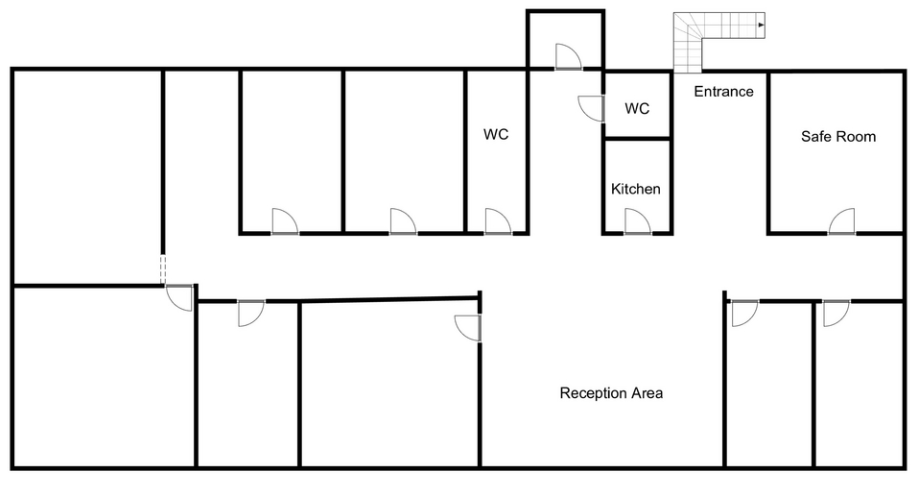
Internally, the subjects are laid out to provide a reception/waiting area with 8 private rooms, kitchen and toilet facilities.

The subjects benefit from high ceilings and large bay windows providing exceptional natural daylight throughout the premises.

Access to the premises is provided on the ground floor of George Street through a single recessed entrance door, protected by storm doors.

PLANNING

The premises were subject of previous planning application to Argyle and Bute Council. These proposals are a matter of public record and can be viewed on the Argyll and Bute Council Planning Portal, however, in summary, consent was obtained to form 3 residential flats in January 2019. Please see Planning Ref No. 19/00160/PP for further information.

Parties wishing to discuss the potential for residential development or any alternative uses should make their own detailed planning enquiries.

ACCOMMODATION AND FLOOR AREAS

The property has been measured in accordance with RICS Code of Measuring Practice – 6th Edition on a Gross Internal basis and is as follows:

4,618 sq.ft.  (429 sq.m.)

NON-DOMESTIC RATES

Total Rateable Value – £23,450.

Please note that a new occupier has the right to appeal the current assessment.

SALE TERMS

Offers over £250,000 are invited.

ENERGY PERFORMANCE

A copy of the Energy Performance Certificate (EPC) for the subjects is available upon request.

LEGAL COSTS

Each party will be responsible for paying their own legal costs incurred in this transaction.

VAT

All prices quoted are exclusive of VAT.

ANTI MONEY LAUNDERING

Under the Money Laundering, Terrorist Financing and Transfer of Funds (Information on the Payer) Regulations 2017, DM Hall are legally required to complete due diligence on purchasers and vendors. Once an offer has been accepted, the prospective purchaser(s)/occupier(s) shall be required to provide, as a minimum, proof of identity and residence and proof of funds for the purchase before the transaction can proceed.

MAKE AN ENQUIRY

Jonathan McManus
07771 606582
jonathan.mcmanus@dmhall.co.uk

Or

Louis Holmes
07787 308812
Louis.holmes@dmhall.co.uk

Downloads

Site Plan: Download
Floor Plans: Download Plan
Brochure: Download

Want to know more? Fill in the form and a member of our team will be in touch soon.

Name(Required)
We would like to keep you posted on future properties you may be interested in but in order to do so we require your permission:

Contact Details

Branch: Glasgow
Telephone: 0141 332 8615
Email: Jonathan.McManus@dmhall.co.uk
Agent Bio: View here
Back to Properties

Let us support you with all your property requirements.

Get in touch today

Skip to content