Skip to content

For Sale – Industrial Premises, 20 Broadcroft, Kirkintilloch, Glasgow G66 1HP

Status: For Sale
20, Broadcroft, Kirkintilloch, Glasgow, G66 1HP
Offers Invited
  • Sizes:
  • 5053 sqft,
  • 469.41 ㎡

Type: Purchase

For Sale

Summary

  • Well-presented industrial premises with good transport links.
  • Private car parking for 13 spaces.
  • Gross Internal Area – 469.41 sq.m (5,053 sq.ft.) approx.
  • Total Site Area - 0.113 ha (0.279 ac).
  • OFFERS INVITED.

Location

The property is located within Kirkintilloch, a well-established town situated approximately 11 miles north of Glasgow City Centre, adjacent to Lenzie.

The area benefits from excellent transport connectivity, with Lenzie Railway Station just a short drive away, providing regular direct services to both Glasgow Queen Street and Edinburgh Waverley.

The M80 motorway, with convenient links to the M8, can be reached in under 10 minutes, offering efficient road access across the Central Belt.

The surrounding area is characterised by a diverse mix of light industrial and commercial occupiers, including auto repair centres, MOT testing facilities, tyre specialists, and various trade operators.

A range of local amenities, including shops, cafés, and hospitality venues, are also located nearby.

Description

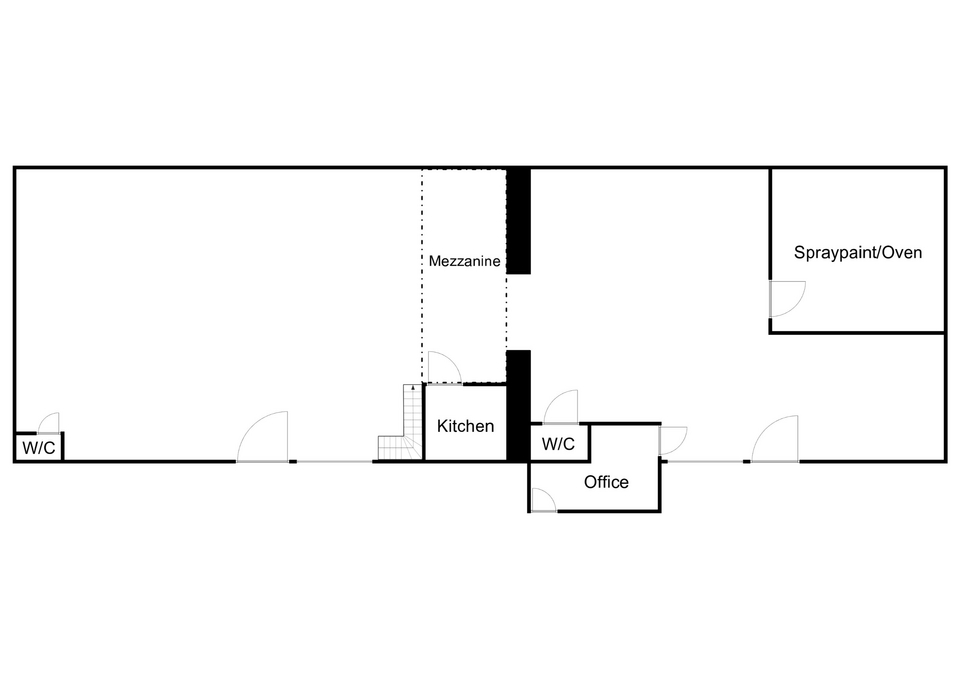
The property comprises a detached, steel-framed industrial unit with brick/blockwork walls and a pitched roof.

Vehicular access is provided via two roller shutter doors, with separate pedestrian access doors also located to the front elevation.

Internally, the accommodation offers an open-plan warehouse area at ground floor level, together with a centrally positioned mezzanine providing additional storage space. To the front of the unit, there is an office/reception area incorporating staff kitchen and toilet facilities.

A dedicated spray booth/oven is currently installed within the eastern section of the unit.

Externally, the property benefits from a private yard and parking area to the front, providing space for approximately 13 vehicles. Eaves height – approximately 3.88 metres.

ACCOMMODATION & FLOOR AREAS

The property has been measured in accordance with RICS Code of Measuring Practice – 6th Edition on a Gross Internal basis and is as follows:

Warehouse: 450.76 sq.m.    4,852 sq.ft.
Additional Mezzanine Storage: 18.65  sq.m. 201 sq.ft.

Total:  469.41 sq.m. 5,053 sq.ft.

The total site area extends to approximately 0.279 acres (0.113 hectares).

NON-DOMESTIC RATES

Rateable Value – £17,000.

The subjects qualify for Rates Relief under the Small Business Bonus Scheme, subject to occupier status.

SALE TERMS

OFFERS INVITED.

ENERGY PERFORMANCE

A copy of the Energy Performance Certificate (EPC) for the subjects is available upon request.

LEGAL COSTS

Each party will be responsible for paying their own legal costs incurred in this transaction.

VAT

All prices quoted are exclusive of VAT, which may be chargeable.

ANTI MONEY LAUNDERING

DM Hall is regulated by HMRC under the Money Laundering Regulations 2017, as amended by the Fifth Money Laundering Directive effective from 10 January 2020. In line with these regulations, we must carry out due diligence checks on all purchasers and vendors. Once an offer is accepted, the purchaser(s) or occupier(s) must provide proof of identity, address, and proof of funds before the transaction can proceed.

VIEWING ARRANGEMENTS

Strictly by contacting the sole selling agents.

MAKE AN ENQUIRY

Claire Hutton
07876 541654
Claire.Hutton@dmhall.co.uk

Or

Louis Holmes
07787 308812
Louis.Holmes@dmhall.co.uk

 

Downloads

Site Plan: Download
Floor Plans: Download Plan
Brochure: Download

Want to know more? Fill in the form and a member of our team will be in touch soon.

Name(Required)
We would like to keep you posted on future properties you may be interested in but in order to do so we require your permission:

Contact Details

Branch: Glasgow
Telephone: 0141 332 8615
Email: claire.hutton@dmhall.co.uk
Agent Bio: View here
Back to Properties

Let us support you with all your property requirements.

Get in touch today

Skip to content