Skip to content

Investment for Sale, Spiersbridge Business Park, Thornliebank, Glasgow G46 8NL

Status: For Sale
Spiersbridge Business Park, Thornliebank, Glasgow, G46 8NL
Offers Over, £9,500,000
  • Sizes:
  • 77098 - 7165 sqft,
  • 1943.05 ㎡,
  • 8.23 Acres,
  • 3.33 Hectares

Type: Purchase

For Sale

Summary

  • Fully let business park investment.
  • Two terraces of industrial units plus two office buildings.
  • Current rental income of £839,000 per annum approximately.
  • WAULT average 3 years 1 month.
  • Offers over £9.5 million invited.
  • 8.28% NIY (after deduction of purchaser’s costs).
  • Capital rate of £123 per sq.ft.

Location

Spiersbridge Business Park is located within the Thornliebank area of Glasgow and lies approximately six miles south of the city centre within the Council district of East Renfrewshire.

The business park is accessed directly from Spiersbridge Road (the B769) and is approximate 0.5 miles north of its junction with Rouken Glen Road, close to Spiersbridge Roundabout. The nearest motorway junction is Junction 3 of the M77 which links Glasgow City Centre via the M8 Motorway and onwards to the rest of the Central Belt motorway network.

The business park is located within easy walking distance of a typical range of amenities including shops and public transport with regular bus services operating at Spiersbridge Road and Nitshill Road. The closest railway station is at Thornliebank which is within approximately 15 minutes’ walk.

Description

The subjects comprise four main properties (constructed early 2007) along with ancillary car parking.

1 Spiersbridge Way
Business Centre

This building comprises a detached ‘L’ shaped two storey office pavilion providing serviced office accommodation with the benefit of a large surfaced car park adjoining.

Internally, the building comprises a mixture of open plan ancillary office rooms/meeting rooms split over ground and first floor levels with access between the floors from the communal ground floor reception area via a staircase or passenger lift.

There are communal kitchen facilities and breakout areas and male, female and disabled access toilets on both floor levels.

The office rooms are predominantly formed by stud partitioning to full height glazing and incorporating raised access floors with floor boxes. Ceilings are typically suspended acoustic tiles throughout.

2 Spiersbridge Way
East Renfrewshire Council

This building comprises a detached two storey office pavilion of similar construction to 1 Spiersbridge Way with additional cut and wall glazing to the front elevation.

The building is currently let to East Renfrewshire Council who have been in occupation since February 2007.

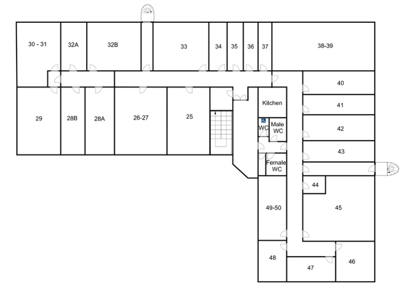
4, 6 and 8 Spiersbridge Way
Terrace of Office and Warehouse Hybrid Units

Comprises multi-let two storey terrace formed of three adjoining units, having office accommodation to the front and warehouse areas to the rear.

Access to the rear warehouse space is from a tarmacked surfaced yard/car park whilst the offices have main door entrances at ground level to the front.

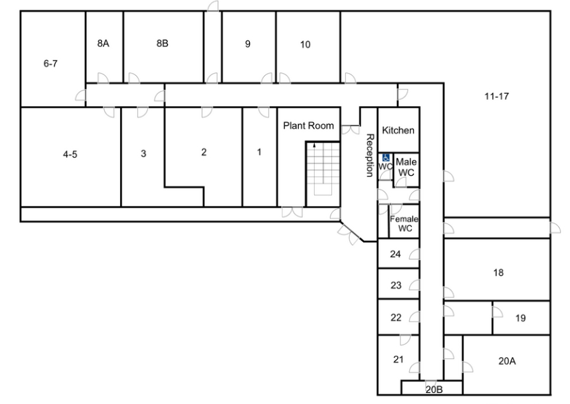
3 – 17 Spiersbridge Way
Terrace of Industrial Units

The property comprises a terrace of multi-let industrial warehouse units with a concrete surfaced yard/parking area to the front.

The terrace is of steel portal frame construction with the front and rear elevations clad with composite metal panelling.

All seven units have roller shutter vehicular access doors with the majority of the units having mezzanines installed.

ACCOMMODATION & FLOOR AREAS

The approximate floor areas of the buildings in accordance with the RICS Code of Measuring Practice, are as follows:-

 

1 Spiersbridge Way

Floor Description Sq.m. Sq.ft.
Ground Office/Business Centre 1,592.55 17,142
Total 1,592.55 17,142

 

2 Spiersbridge Way

Floor Description Sq.m. Sq.ft.
Ground Offices 651.99 7,018
First Offices 652.92 7,028
Total 1,304.91 14,046

 

4, 6 & 8 Spiersbridge Way

Floor Description Sq.m. Sq.ft.
Ground & First Warehouses 2,322.11 24,995
Total 2,322.11 24,995

 

Units 3, 5, 7, 9, 11, 15 & 17 Spiersbridge Way

Floor Description Sq.m. Sq.ft.
Ground & First Industrial Warehouses (x7) 1,943.05 20,915
Total 1,943.05 20,915

 

TOTAL PROPERTY AREA 7,165.245 77,098

 

TOTAL SITE AREA 3.33 HA 8.23 Acres

VIEWING & FURTHER INFORMATION

Parties are advised to note interest with the selling agents.

Viewings are by appointment only via the agents DM Hall or Lapsley McManus.

DM HALL LLP
Jonathan McManus
07771 606582
Jonathan.McManus@dmhall.co.uk

or

Claire Hutton
07876 541654
Claire.Hutton@dmhall.co.uk

LAPSLEY MCMANUS
Marc Erunlu
07836 357570
marc@lapsleymcmanus.co

ANTI MONEY LAUNDERING

Under the Money Laundering, Terrorist Financing and Transfer of Funds (Information on the Payer) Regulations 2017, DM Hall are legally required to complete due diligence on purchasers and vendors. Once an offer has been accepted, the prospective purchaser(s)/occupier(s) shall be required to provide, as a minimum, proof of identity and residence and proof of funds for the purchase before the transaction can proceed.

Downloads

Site Plan: Download
Brochure: Download

Want to know more? Fill in the form and a member of our team will be in touch soon.

Name(Required)
We would like to keep you posted on future properties you may be interested in but in order to do so we require your permission:

Contact Details

Branch: Glasgow
Telephone: 0141 332 8615
Email: Jonathan.McManus@dmhall.co.uk
Agent Bio: View here
Back to Properties

Let us support you with all your property requirements.

Get in touch today

Skip to content