Trustpilot
Skip to content

To Let – Well Presented Business Centre Offices, Newmilns

78 Brown Street, Newmilns, KA16 9AG
£2,400 (per annum)
  • Sizes:
  • 5000 sqft,
  • 464.51 ㎡

Type: Lease

Summary

  • Established business location in Newmilns, near Kilmarnock
  • Business centre offices in traditional mill building
  • Rooms available from 12.51 sqm to 187.93 sqm (135 to 2023 sqft)
  • 100% Rates relief available on most rooms
  • Competitive ‚exclusive‚ rents on

Location

Brown Street is an established business location in Newmilns town centre, with the subject property located a short distance west of the junction with Main Street, forming part of the A71 road running through Newmilns, extending east to Kilmarnock and east to the M74. Newmilns is located within the East Ayrshire region, around 7 miles and a 14 minute drive east of Kilmarnock, and 26 miles south of Glasgow with a 38 minute drive time.

Description

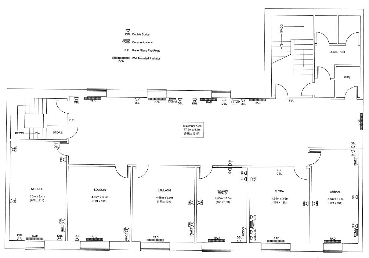
78 Brown Street, is a traditional, former lace mill that has been converted into a series of refurbished office and commercial spaces across three floors, with secure and private car parking. The available suites are mostly on the first and second floors of the former mill, with some ground floor spaces also available having an attractive entrance hallway shared with the buildings main occupiers, Dustacco Engineering. Suites are available in a variety of sizes to suit occupier demand from 12.51 sqm to 187.93 sqm (135 sqft to 2023 sqft), as per the availability schedule. Floor Suite Size (sqm) Size (sqft) Rent (pa) Rent (pm) Ground 1 44.54 479 £ 8,220 £ 685 Ground 2 47.16 508 £ 8,700 £ 725 First 4 17.93 193 £ 3,300 £ 275 First 5 12.51 135 £ 2,400 £ 200 First 6 22.52 242 £ 4,080 £ 340 First 7 22.34 240 £ 4,080 £ 340 First 8 187.93 2023 £ 15,000 £ 1,250 Second 9 16.25 175 £ 3,000 £ 250 Second 10 16.25 175 £ 3,000 £ 250 Second 11 13.59 146 £ 2,400 £ 200 Second 12 17.43 188 £ 3,240 £ 270 Second 13 17.43 188 £ 3,240 £ 270 Second 14 20.47 220 £ 3,600 £ 300 Each of the suites in the building qualify for 100% rates relief via the Small Business Bonus Scheme, subject to occupier status. The suites are available on flexible lease terms, and on an ‚òinclusive‚ basis covering service charges, utility costs, common cleaning, maintenance and buildings insurance. Each party to be responsible for their own legal costs incurred. EPC upon request.

Downloads

Want to know more? Fill in the form and a member of our team will be in touch soon.

Contact Details

Branch: Prestwick

Contact: Anthony Zdanowicz

Telephone: 01292 268055

Email: anthony.zdanowicz@dmhall.co.uk

Back to Properties

Let us support you with all your property requirements.

Get in touch today

Skip to content