Trustpilot
Skip to content

To Let – Retail Warehouse with Previous Class 3 (Food and Drink) Use, Kilmarnock

Status: Under Offer
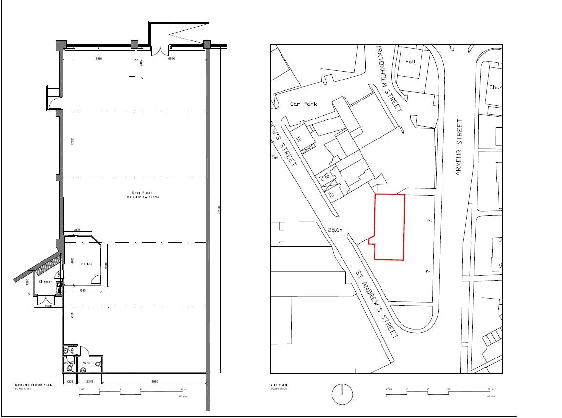
7 Armour Street, Kilmarnock, KA1 3HT
£45,000 (per annum)
  • Sizes:
  • 4672 sqft,
  • 434.04 ㎡

Type: Lease

Under Offer

Summary

  • Prominent location in Kilmarnock town centre Retail/Trade Warehouse premises Previous class 3 (food and drink) consent On site car parking Gross floor area 434 sqm (4,672 sqft) Rent £45,000 per annum exc VAT.

Location

Armour Street is in Kilmarnock town centre and is a busy main road with the property occupying a prominent position adjacent to Bensons for Beds, and sharing an ANPR controlled car park with Barnardos and Iceland. Archers Sleepcentre, McDonalds, M&S and Home Bargains, are located nearby. Kilmarnock is in the East Ayrshire region, around 24 miles southwest of Glasgow and has a population of around 50,000 persons.

Description

7 Armour Street is a rectangular shaped, semi-detached retail warehouse with extensive frontage and rear servicing. The unit may be suitable for trade counter use and has previously had consent for class 3 (food and drink) use. Planning enquiries should be directed to East Ayrshire Council. The property extends to a gross internal floor area of 434 sqm (4,672 sqft), or thereby. The rateable value is £26,100. EPC available upon application. Rental offers of £45,000 per annum are sought, exclusive of VAT, for a new full repairing and insuring lease of negotiable length. Each party to be responsible for their own legal costs incurred.

Downloads

Brochure: Download

Want to know more? Fill in the form and a member of our team will be in touch soon.

Contact Details

Branch: Prestwick

Contact: Anthony Zdanowicz

Telephone: 01292 268055

Email: anthony.zdanowicz@dmhall.co.uk

Back to Properties

Let us support you with all your property requirements.

Get in touch today

Skip to content