Skip to content

To Let/May Sell – Historic Commercial Property, Ayr

Status: For Sale
1, Boat Vennal, Ayr, KA7 1HR
Offers Invited
  • Sizes:
  • 8331 sqft,
  • 774 ㎡

Type: For Sale / To Let

For Sale

Summary

  • Central location in Ayr
  • Historically important, category A listed property
  • Commercial meeting & events space
  • Potential for alternative uses and possible conversion
  • Gross internal floor area 258 sqm (2,777 sqft) across three floors
  • 50% rates relief available
  • Offers are invited
  • **OPEN VIEWING THURSDAY 11TH DECEMBER 2025, 6-8PM**

Location

‘Loudoun Hall’ is located on Boat Vennal, in the heart of Ayr town centre a short distance from its junction with the north end of High Street, New Bridge Street and Sandgate. There is public car parking adjacent to the property, accessed off South Harbour Street with partial outlook on to River Ayr and Ayr Port.

The location lies close to the main bus route and Ayr bus terminus and railway stations are within a 10-minute walk. Ayr railway station offers regular, fast train services to Glasgow. The nearby area is well served for retail, food and beverage, leisure and cultural sectors.

Ayr is the administrative capital of the South Ayrshire region, in Southwest Scotland, around 39 miles southwest of Glasgow with direct access via the A77 and a 54-minute drive time. The town has a resident population of around 47,000 persons with a South Ayrshire catchment of around 114,000 persons.

Description

Built in 1513 for the merchant James Tait, ‘Loudoun Hall’ is Ayr’s oldest surviving house and one of Scotland’s finest examples of early urban architecture with elegant stonework, vaulted cellars, and a grand upper hall.

Positioned near the old harbour, the Hall once stood at the centre of Ayr’s commercial life. In later years, ‘Loudoun Hall’ became home to the Sheriff of Ayrshire and was a hub for governance and international trade, and as the town expanded and modernised, ‘Loudoun Hall’ remained a symbol of resilience from its origin as a medieval port to a modern community.

Loudoun Hall’ was rescued in the 1940s, carefully restored and reopened as a cultural venue and civic space with further upgrades in the 1990s and 2020s ensuring the town centre building remains both historic and functional.

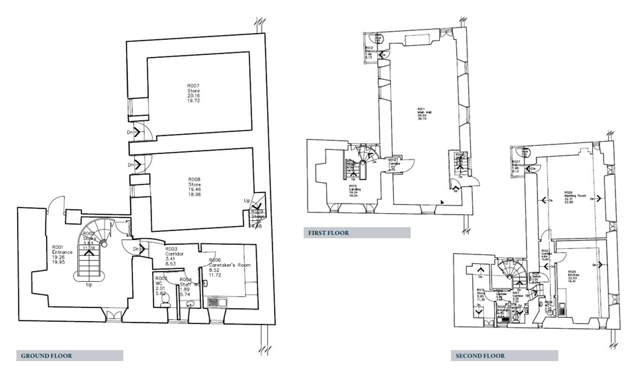
‘Loudoun Hall’ is a category A listed monument, that has been restored over its three floors to form a well-presented meeting and events space, comprising of the following accommodation:

·       Ground Floor: Hallway with central staircase, a caretaker’s room, a toilet and two vaulted stores

·       First Floor: Landing and the main meeting hall

·       Second Floor: Meeting room, a kitchen, a kitchenette, two toilets and a store

Layout plans are provided.

We believe that the property has potential for other commercial uses, including office use and possible residential conversion, subject to obtaining the necessary consents. Further enquiries on change of use should be referred to South Ayrshire Council Planning Department on 01292 616107.

The total gross internal floor area is 258 sqm (2,777 sqft), or thereby, across the three floors.
The rateable value is £13,600 and the property qualifies for 50% rates relief via the Small Business Bonus Scheme, subject to occupier status.
EPC available upon application.
Offers are invited on a lease, or, sale basis, and would consider proposals that are subject to a change of use. Any lease agreement will be on a full repairing and insuring basis on terms to be agreed.
Each party to be responsible for their own legal costs incurred.

Downloads

Site Plan: Download
Floor Plans: Download Plan
Brochure: Download

Want to know more? Fill in the form and a member of our team will be in touch soon.

Name(Required)
We would like to keep you posted on future properties you may be interested in but in order to do so we require your permission:

Contact Details

Branch: Ayrshire Commercial
Telephone: 01292 286974
Email: Anthony.zdanowicz@dmhall.co.uk
Agent Bio: View here
Back to Properties

Let us support you with all your property requirements.

Get in touch today

Skip to content