Trustpilot
Skip to content

Status: Under Offer
56 Chapel Street, Carluke, ML8 4BA
Guide Price, £45,000 (per annum)
  • Sizes:
  • 6338 sqft,
  • 588.81 ㎡

Type: Lease

Under Offer

Summary

  • Prominent stand-alone retail warehouse
  • Flexible open-plan accommodation
  • Suitable for a variety of retail, trade counter, leisure or showroom uses (STP)
  • Excellent on-site customer and staff parking
  • High-profile roadside position
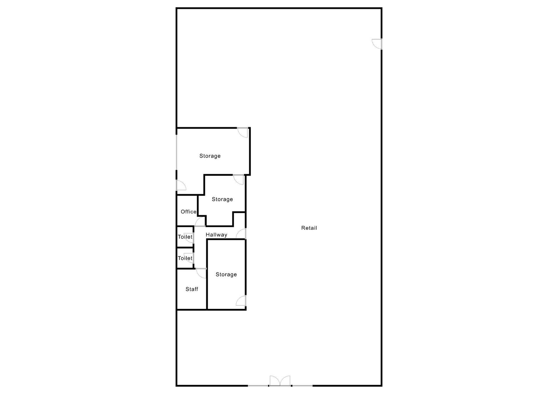
  • Gross Internal Area of 6,338 sq ft (588 sq m)
  • Rental offers in excess of £45,000 per annum

Location

Carluke lies approximately 23 miles southeast of Glasgow and 7 miles southeast of Motherwell, benefiting from excellent road connectivity via the M74 and M8 motorway networks.

The property is prominently located 100 metres northeast of the town centre, with direct access from Chapel Street (A721), a main route linking seamlessly to the wider A73 corridor. This location offers convenient access to local amenities, services, and the central retail core. The town has a population of around 14,000 residents.

Description

The property is a standalone commercial unit, previously used as a retail warehouse, offering flexible open-plan accommodation. The main sales area is spacious and bright, providing excellent display and circulation space.

Supporting the sales area are storage facilities, staff accommodation, and WC provision, all conveniently located within the building to serve the operational needs of the occupier.

The unit is of steel portal frame construction with brick and metal sheet elevations, and the interior is finished in a clean, functional style with a combination of gas central heating and fan heating to the main areas.

The property sits on a site of approximately 0.74 acres, with a predominately tarmacadam surface and a concrete forecourt, providing ample space for customer parking and deliveries. Its prominent location in a mixed-use area ensures high visibility and accessibility

Downloads

Floor Plans: Download Plan
Brochure: Download

Want to know more? Fill in the form and a member of our team will be in touch soon.

Contact Details

Branch: Hamilton

Contact: Jacqueline Towie

Telephone: 01698 284939

Email: jacqueline.towie@dmhall.co.uk

Back to Properties

Let us support you with all your property requirements.

Get in touch today

Skip to content