Trustpilot
Skip to content

FOR SALE – WELL LET OFFICE INVESTMENT AT PIXEL MILL, APPLEBY ROAD, KENDAL

Pixel Mill Appleby Road, Kendal, LA9 6ES
£495,000
  • Sizes:
  • 2854 sqft,
  • 265.14 ㎡

Type: Purchase

Summary

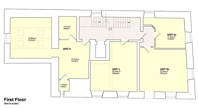
  • Well let office investment Potential to achieve around £50,000 per annum when fully let Excellent location 2854 sq ft GIA Consisting of 13 letting offices
  • £495,000 for the freehold investment

Location

Pixel Mill is located on Appleby Road in Kendal. There are 3 major supermarkets, a retail trading estate, and also a post office all within walking distance. Kendal railway station is only around 5 minutes walk from the unit, and Kendal Town Centre is around 10-15 minutes walk.

Description

Pixel Mill is a former mill that has been sympathetically modernised to provide high-quality, self-contained office spaces. The property currently comprises 13 office units of varying sizes and generates an annual income of approximately £50,000 when fully let. Each office unit is individually metered for electricity. Occupiers also benefit from shared kitchenette facilities, standard WCs, and accessible disabled WCs. This distinctive historic property combines charm with the convenience and functionality of modern office amenities, making it an attractive option for a range of professional tenants. Asking price £495,000 for the freehold investment. Contact: Suzie Barron Caroline Hayton

Downloads

Brochure: Download

Want to know more? Fill in the form and a member of our team will be in touch soon.

Contact Details

Branch: Kendal

Contact: Caroline Hayton

Telephone: 01539 740 500

Email: caroline.hayton@dmhall.co.uk

Back to Properties

Let us support you with all your property requirements.

Get in touch today

Skip to content