Skip to content

For Sale – Showroom/Workshop Property, Dalbeattie

Status: For Sale
Water Street, Dalbeattie, DG54JS
Offers Over, £100,000
  • Sizes:
  • 2327 sqft,
  • 214 ㎡,
  • 0.11 Acres,
  • 0.04 Hectares

Type: Purchase

For Sale

Summary

  • Prominent position in Dalbeattie town centre
  • Showroom/workshop/store of 214 sqm (2,327 sqft)
  • Potential for development, subject to planning
  • Site area 0.04 hectares (0.11 acres)
  • 100% rates relief available
  • Offers over £100,000

Location

Dalbeattie is in the Dumfries and Galloway region, around 15 miles southwest of Dumfries via A711 or A75 and 6 miles southeast of Castle Douglas via A745. The town has a population of around 4,200 persons and large rural catchment.

Water Street is just off John Street, a main road route in Dalbeattie town centre, which leads to a town centre public car park. The Barr Burn runs adjacent to the location.

Description

The showroom/workshop on Water Street, is a detached property having the benefit of a gated yard and a separate detached store/garage. The site extends to 0.04 ha (0.11 ac), or thereby.

The property may be suitable for variety of uses and, possibly, development, subject to the necessary consents and further enquiries should be directed to D&G Council planning department.

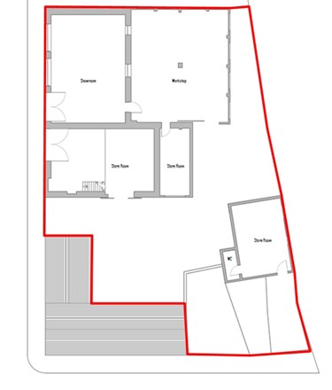
Indicative site pans are provided, and floorplans are available upon request.

The Water Street property extends to a gross internal floor area of 214 sqm (2,327 sqft), or thereby.

The property qualifies for 100% rates relief via the Small Business Bonus Scheme, subject to occupier status.

EPC available upon application.

Offers over £100,000 are invited for our client’s heritable interest in the property.

Downloads

Site Plan: Download
Floor Plans: Download Plan

Want to know more? Fill in the form and a member of our team will be in touch soon.

Name(Required)
We would like to keep you posted on future properties you may be interested in but in order to do so we require your permission:

Contact Details

Branch: Ayrshire Commercial
Telephone: 01292 286974
Email: Anthony.zdanowicz@dmhall.co.uk
Agent Bio: View here
Back to Properties

Let us support you with all your property requirements.

Get in touch today

Skip to content