Skip to content

For Sale -Showroom & Workshop Premises, Dalbeattie

Status: Under Offer
18 & 18a , John Street
& Water Street, Dalbeattie, DG5 4JS
Offers Over, £240,000
  • Sizes:
  • 6778 sqft,
  • 628 ㎡,
  • 0.25 Acres,
  • 0.10 Hectares

Type: Purchase

Under Offer

Summary

  • Prominent position in Dalbeattie town centre
  • Roadside showroom/workshop of 414 sqm (4,451 sqft)
  • Second showroom/workshop/store of 214 sqm (2,327 sqft)
  • Combined site area 0.10 hectares (0.25 acres)
  • 100% rates relief available
  • Potential for alternative use development
  • Offers over £240,000 for the two sites
  • Sites may be sold separately

Location

Dalbeattie is in the Dumfries and Galloway region, around 15 miles southwest of Dumfries via A711 or A75 and 6 miles southeast of Castle Douglas via A745. The town has a population of around 4,200 persons and large rural catchment.

John Street forms part of the A711, a main road route through the town to the immediate north of the town centre, with Water Street being a junction off John Street, leading to a town centre public car park. The Barr Burn runs adjacent to the location.

Description

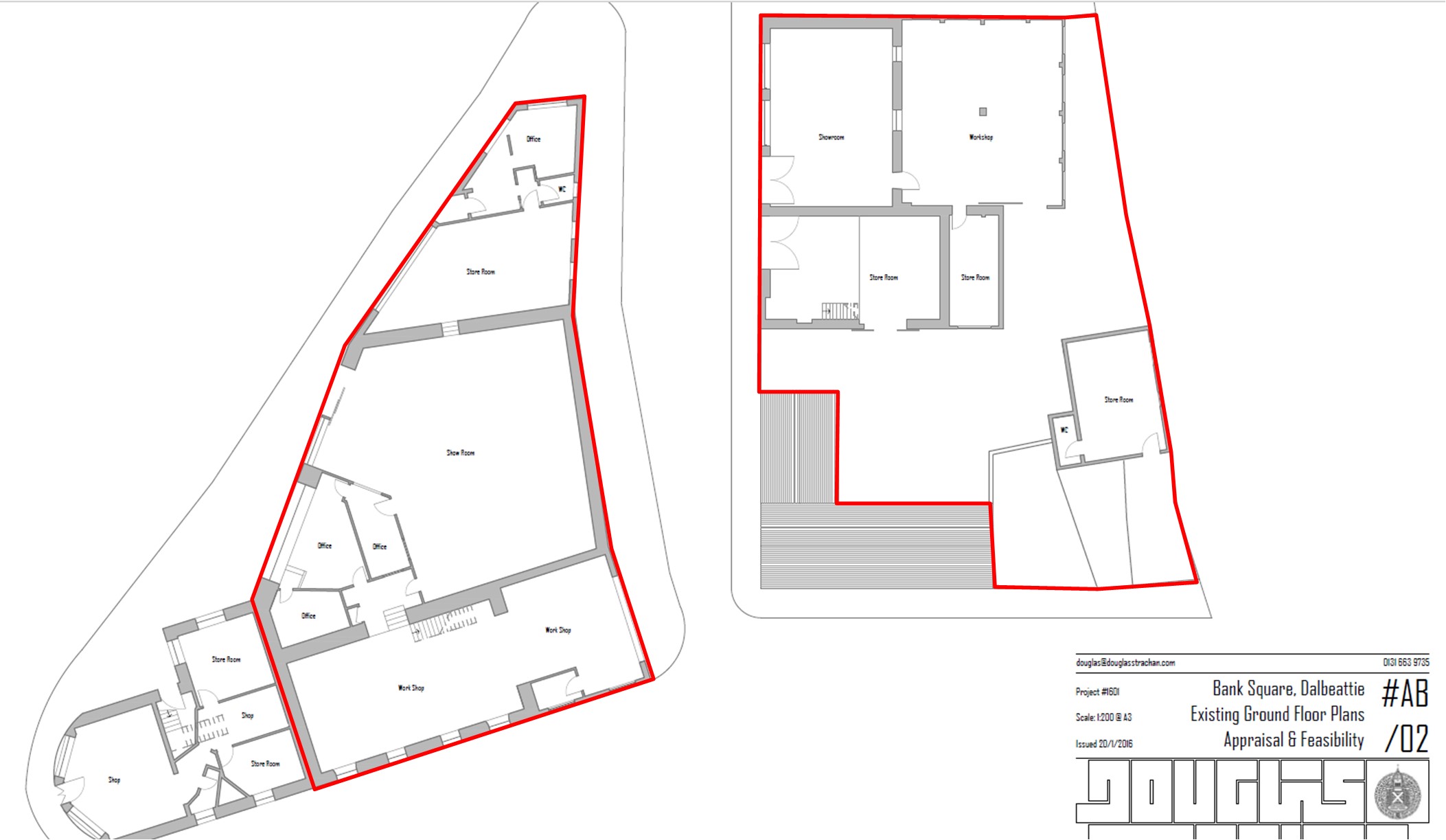
18 & 18a John Street, is a showroom/garage premises, mostly single storey and of traditional construction, with prominent, corner positioned roadside frontage and vehicle access. The workshop has been split to form the main showroom/garage area, an office, a workshop and first floor storage. The property has a workshop to the rear with upper floor storage and vehicle access on to Water Street. The site extends to 0.06 ha (0.14 ac), or thereby.

The showroom/workshop on Water Street, is a detached property having the benefit of a gated yard and a separate detached store/garage. The site extends to 0.04 ha (0.11 ac), or thereby.

The properties may be suitable for variety of uses and, possibly, development, subject to the necessary consents and further enquiries should be directed to D&G Council planning department.

Indicative site pans are provided, and floorplans are available upon request.

18 & 18a John Street extends to a gross internal floor area of 414 sqm (4,451 sqft), or thereby. The Water Street property extends to a gross internal floor area of 214 sqm (2,327 sqft), or thereby.
There are three rateable values with the showroom valued at £11,800, offices at £1000 and a store at £270, all of which qualify for 100% rates relief via the Small Business Bonus Scheme, subject to occupier status.
EPC available upon application.
Offers over £240,000 are invited for our client’s heritable interest in the combined property.

Alternatively, our clients will consider individual sales with ‘offers over £150,000’ for the John Street workshop and ‘offers over £100,000’ for the Water Street property.

Each party to be responsible for their own legal costs incurred.

Downloads

Site Plan: Download
Floor Plans: Download Plan
Brochure: Download

Want to know more? Fill in the form and a member of our team will be in touch soon.

Name(Required)
We would like to keep you posted on future properties you may be interested in but in order to do so we require your permission:

Contact Details

Branch: Ayrshire Commercial
Telephone: 01292 286974
Email: Anthony.zdanowicz@dmhall.co.uk
Agent Bio: View here
Back to Properties

Let us support you with all your property requirements.

Get in touch today

Skip to content