Trustpilot
Skip to content

For Sale – Self Contained Industrial Workshop

Status: Under Offer
16 Wison Place, East Kilbride, G74 4QD
Offers In Excess Of, £95,000
  • Sizes:
  • 1350 sqft,
  • 125.42 ㎡

Type: Purchase

Under Offer

Summary

  • UNDER OFFER
  • Popular industrial location.
  • Good accessibility to major road/ motorway network.
  • Potential to for enclosed private yard.
  • 100% rates relief, subject to occupier status.
  • Offers over £95,000 are invited.
  • New key point...

Location

The property is situated on Wilson Place, accessed via East Mains Road (B783), just south of Nerston Industrial Estate
in East Kilbride. The area is a well-established industrial location with nearby occupiers including S&S Steel Scotland, Damada Group, Blue Parrot Events, Asbestos Building Surveys, and a mix of local industrial businesses.

Wilson Place offers a variety of unit sizes suitable for small to medium occupiers and benefits from convenient access to the A725 Expressway, linking to the town centre and wider road network, including the A726. East Kilbride is approximately 10 miles southeast of Glasgow City Centre,
with good public transport connections, including a main railway line to Glasgow

Description

The subjects comprise a mid-terrace industrial unit dating from the 1960s, constructed in brick with rendered and facing brick elevations under a pitched steel-framed roof.

The property features a combined pedestrian and vehicular roller shutter access to the front (approx. 3.41m height) and separate pedestrian access to the rear.

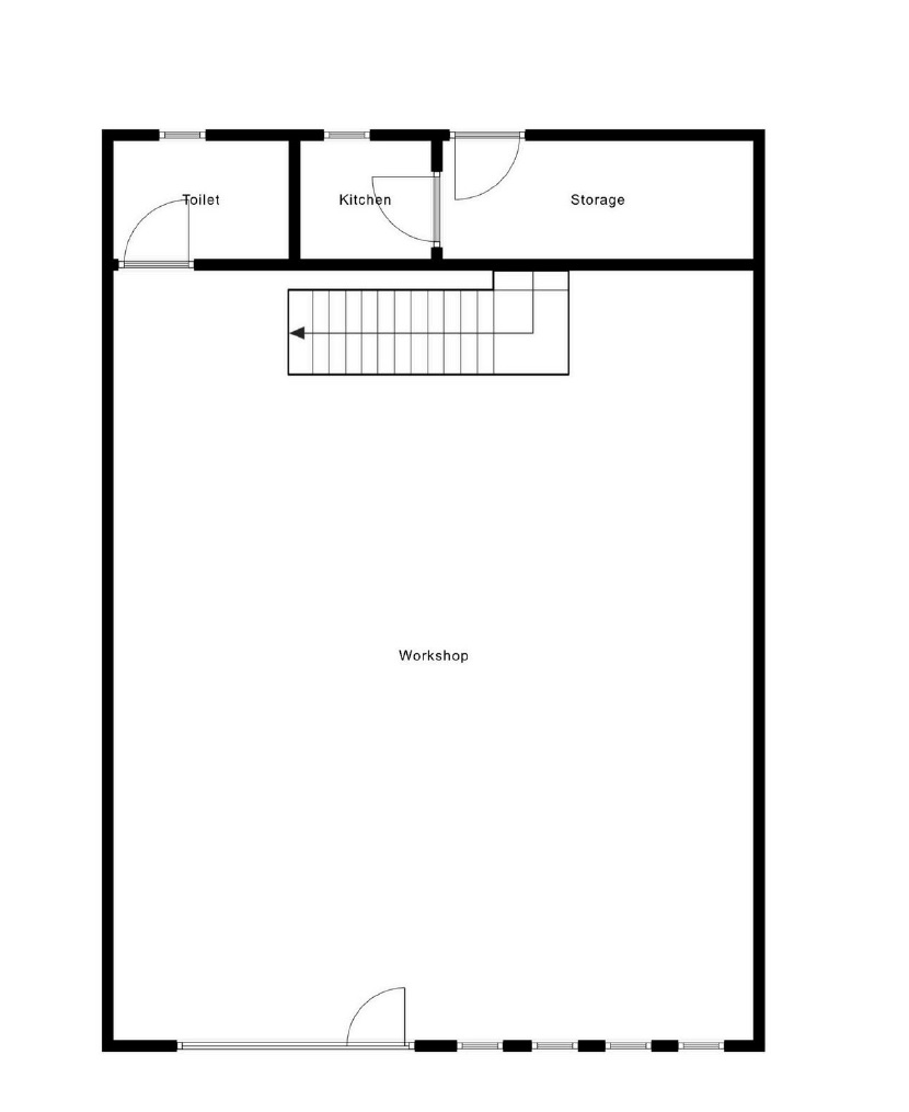
Internally, the unit provides a largely open-plan workshop with WC, kitchen, store, and a mezzanine office at the rear.

The title includes exclusive rights to a rear yard/parking area of approximately 0.025 acres (0.01 hectares).

Downloads

Floor Plans: Download Plan
Brochure: Download

Want to know more? Fill in the form and a member of our team will be in touch soon.

Contact Details

Branch: Hamilton

Contact: Jacqueline Towie

Telephone: 01698 284939

Email: jacqueline.towie@dmhall.co.uk

Back to Properties

Let us support you with all your property requirements.

Get in touch today

Skip to content