Trustpilot
Skip to content

For Sale – Prime Commercial Property with Development Potential

2 Lower Auchingramont Road, Hamilton, ML3 6HW
Offers In Excess Of, £235,000
  • Sizes:
  • 4489 sqft,
  • 417.04 ㎡

Type: Purchase

Summary

  • IMPRESSIVE CATEGORY B LISTED BUILDING
  • POTENTIAL FOR CONVERSION TO MIX USE DEVELOPMENT, OFFICE, OR RESIDENTIAL USE (SUBJECT TO PLANNING)
  • PROMINENT LOCATION WITH EXCELLENT ROAD AND RAIL LINKS
  • CLOSE PROXIMITY TO HAMILTON TOWN CENTRE AND MAJOR COMMERCIAL HUBS
  • IDEAL FOR INVESTORS OR DEVELOPERS SEEKING TO MAXIMIZE THE SITE’S POTENTIAL.
  • NET INTERNAL AREA417.1 SQ.M (4,489 SQ.FT)
  • OFFER OVER £235,000 ARE INVITED.

Location

Situated in the heart of Hamilton, Lower Auchingramont Road offers easy access to both road and rail transport links, and local amenities. The property benefits from its close proximity to Hamilton Town Centre, with its retail, restaurant/bar and leisure amenities, and excellent access to the M74 motorway, providing direct links to Glasgow, Edinburgh, and beyond. Hamilton is situated approximately 10 miles to the southeast of Glasgow city centre and is the main commercial and administrative hub for South Lanarkshire. The approximate location of the subjects is shown on the appended street plan.

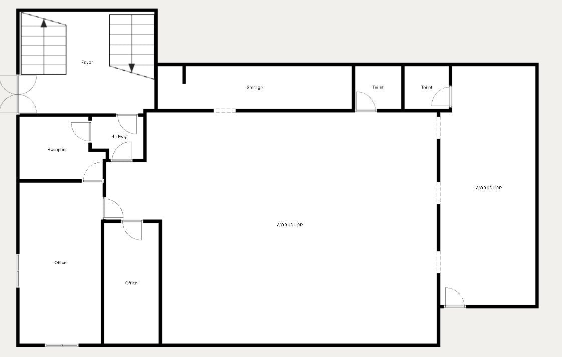
Description

2 Lower Auchingramont Road, a B listed Building, constructed in the 1900‚s, is currently arranged as a business centre and print works, over three floors. Access to the building is via the main central entrance, leading to a spacious open plan foyer. The ground and basement are currently occupied by a print works and are laid out to provide, a reception, two private offices, an open plan print room, and associated stores. The basement provides open plan storage and due to the topography of the site is accessed by external street level access. The upper floor contains communal kitchen, toilet facilities, 6 private offices, some of which are occupied on short term leases. Please see indicative floor plan. The property has been measured in accordance with RICS Code of Measuring Practice – 6th Edition on a Net Internal basis and is as follows: Floor Accommodation sq m sq ft Ground Print Works 203.27 2,187 First Offices 136.42 1,468 Basement Stores 77.43 833 Total 417.12 4,489 DEVELOPMENT POTENTIAL The property has an existing Class 4 office use however with its flexible layout and strategic location, this property offers numerous opportunities for redevelopment or repurposing, including: ‚ Residential Conversion: Potential to create residential units in a popular area (subject to planning approval). ‚ Mixed-Use Development: The property‚s versatile space could allow for a blend of commercial and residential uses, offering substantial long-term value. ‚ Commercial Expansion: Suitable for a range of business types, including retail, office spaces, or, exhibition/gallery space. If purchasers wish to consider the planning position further, we recommend contacting Paul Hughes of Glen Etive Projects: paul@glenetiveprojects.co.uk 0785 256 8874 for independent advice. SALE TERMS Offers over £235,000 are invited for the purchase of our client‚s heritable interest. ENERGY PERFORMANCE A copy of the Energy Performance Certificate (EPC) for the subjects is available upon request. NON-DOMESTIC RATES With reference to the Scottish Assessors‚ Association website, the subjects have multiple entries given their current use as a business centre. The Rateable Values of individual suites ranges from £825 – £7,800 permitting business space occupiers to apply for rates relief through the Small Business Bonus Scheme. LEGAL COSTS Each party will be responsible for paying their own legal costs incurred in this transaction. VAT All prices quoted are exclusive of VAT which may be chargeable.

Downloads

Brochure: Download

Want to know more? Fill in the form and a member of our team will be in touch soon.

Contact Details

Branch: Hamilton

Contact: Jacqueline Towie

Telephone: 01698 284939

Email: jacqueline.towie@dmhall.co.uk

Back to Properties

Let us support you with all your property requirements.

Get in touch today

Skip to content