Trustpilot
Skip to content

For Sale – Offices/Shop with Development Potential, Kilbirnie

2 School Wynd, Kilbirnie, KA25 7AY
Offers In Excess Of, £110,000
  • Sizes:
  • 2239 sqft,
  • 208.01 ㎡

Type: Purchase

Summary

  • Prominent corner roadside position in Kilbirnie town centre
  • Traditional style offices and a shop in attractive B listed building
  • Part income producing, with rent of £10,800per annum
  • Total net internal area 208 sqm (2,239 sqft)
  • 100% rates relief
  • Potential for other uses, subject to consent
  • Offers over £110,000

Location

School Wynd is a main road route in Kilbirnie forming part of the A760 which extends 10 miles west to Largs. The property occupies a prominent corner position at the School Wynd junction with Townhead and Bridge Street in Kilbirnie town centre, with a public car park located opposite and a Tesco supermarket located nearby. Kilbirnie is in the North Ayrshire region and is a town with a population of around 7,000 persons. The town lies around 14 miles southwest of Paisley and 23 miles from Glasgow. Regular rail services to Glasgow, Largs and Ayr are available from the nearby village of Glengarnock.

Description

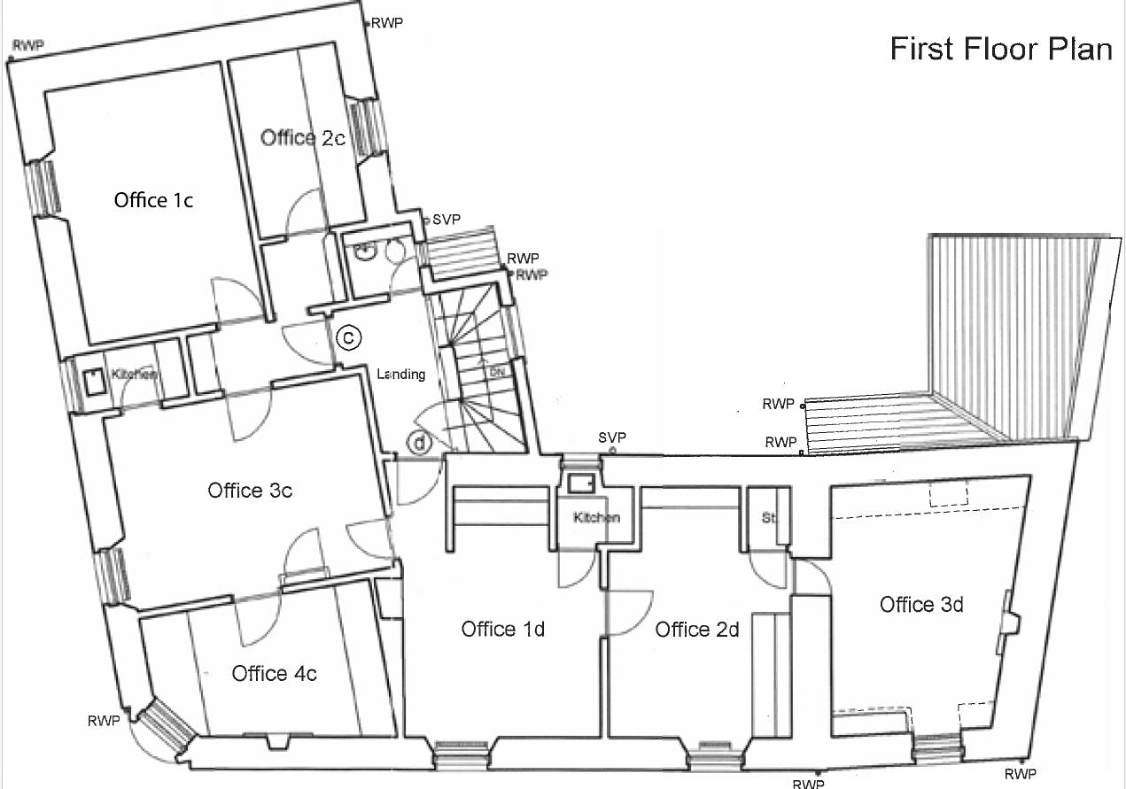
2 School Wynd, is a category B listed corner positioned office and retail property occupying return frontages on to School Wynd and Townhead, overlooking a public car park. The building is over two floors and is of stone and slate construction with sash and casement windows. The property contains traditional cellular style office accommodation over its two floors, split across four suites having six private rooms at ground floor level and a further seven room son the first floor, with shared toilet facilities. The building also has a single fronted retail unit looking on to Townhead. Floorplans are available upon request. There is a rear garden area with outbuildings stores and a parking are with gate access to the able elevation. The property is ideal for commercial multiple occupancy use and has potential for development into residential accommodation, subject to obtaining the necessary consents. The property extends to the following net internal floor areas: Ground Floor Offices: 80 sqm (861 sqft) Ground Floor Shop: 18 sqm (194 sqft) First Floor Offices: 110 sqm (1,184 sqft) Total: 208 sqm (2,239 sqft) The building has several rateable values with a combined rateable value of £8,100, each of which qualifies for 100% rates relief via the Small Business Bous Scheme, subject to occupier status. There are two tenancies in two of the four suites, which subject to rolling informal agreements at a combined rent of £900 per month (£10,800 per annum). Offers over £110,000 are invited for our client‚s heritable interest in the property. An EPC is available upon application. Each party to be responsible for their own legal costs incurred.

Downloads

Brochure: Download

Want to know more? Fill in the form and a member of our team will be in touch soon.

Contact Details

Branch: Prestwick

Contact: Anthony Zdanowicz

Telephone: 01292 268055

Email: anthony.zdanowicz@dmhall.co.uk

Back to Properties

Let us support you with all your property requirements.

Get in touch today

Skip to content