Trustpilot
Skip to content

For Sale/May Let – Former Restaurant in Town Centre Location

17 George Place, Bathgate, EH48 1NX
Price on Application
  • Sizes:
  • 5044 sqft,
  • 468.6 ㎡

Type: For Sale / To Let

Summary

  • Former restaurant in town centre location
  • Landlord may be willing to carry out refurbishment works prior to new tenant entry
  • Flexible premises suitable for sub-division, dependent on requirement
  • 469 sq m (5044 sq ft)
  • Offers over £250,000 (exc. of VAT)
  • Rent on application

Location

Bathgate is a commuter town in West Lothian, approximately 20 miles west of Edinburgh. It holds a population of approximately 21,000 people with excellent communication links via road and rail across the central belt. The subjects are situated on the southern side of George Street in Bathgate, benefitting from a prominent town centre location with high passing footfall and traffic

Description

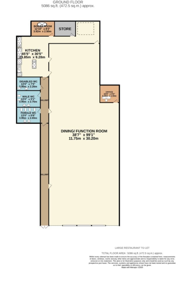
The subjects comprise a stone-built property surmounted by a pitched roof. The subjects benefit from a large, glazed frontage secured by roller shutters. Access is afforded through a recessed entrance and internally, the subjects are presently laid out to provide restaurant accommodation with a spacious open dining/function room, office, kitchen, male, female and disabled WC facilities, and storage.

Downloads

Brochure: Download

Want to know more? Fill in the form and a member of our team will be in touch soon.

Contact Details

Branch: Edinburgh

Contact: Oliver Lawson

Telephone: 0131 624 6130

Email: oliver.lawson@dmhall.co.uk

Back to Properties

Let us support you with all your property requirements.

Get in touch today

Skip to content