Trustpilot
Skip to content

Development Opportunity – Former Care Facility

Status: Under Offer
8 Campbell Street, Wishaw, ML2 8HT
£235,000
  • Sizes:
  • 5584 sqft,
  • 518.77 ㎡

Type: Purchase

Under Offer

Summary

  • Situated within a desirable residential location. Former care facility with 12 bedrooms. Potential for alternative use including residential. Walking distance from Wishaw town centre‚s retail and leisure amenities. Offers Over £235,000 for our client‚
  • Former care facility with 12 bedrooms
  • Potential for alternative use including residential
  • Walking distance from Wishaw town centres retail and leisure amenities
  • Offers Over £235,000 for our clients heritable interest

Location

Campbell Street is primarily residential location in the town of Wishaw, with the property located on the west side of the street, close to its junctions with Young Street and Kirk Street (A722), which links with Wishaw Main Street (A721) to the north. The property benefits from its close proximity to Wishaw Town Centre, with its retail, restaurant/bar and leisure amenities, as well as the locality being within walking distance to both a primary and secondary school. The town of Wishaw is situated approximately 15 miles to the east of Glasgow City Centre and is well connected on the main trunk road network and also provides reasonable public transport links, including a mainline railway station which links the City Centre of Glasgow with the surrounding Lanarkshire towns. The approximate location of the subjects is shown on the appended street plan.

Description

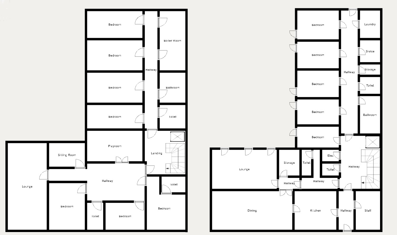
8 Campbell Street was a purpose-built convent constructed circa 1990‚s and most recently was under redevelopment as a women‚s refuge centre. The two-storey detached property, has undergone a degree of modernisation to the ground floor accommodation, with the upper floors requiring redecoration/modernisation. The property has suffered some water damage in the recent past, which has caused limited damage to the entrance hallway accommodation and localised damage to the front section of the upper floor. The building contains the following accommodation: Ground Floor First Floor Entrance hall 7 Bedrooms Lounge Boiler room, Dining room Bathroom, Kitchen 2 WC‚S Staffroom Lounge Stores Sitting room Laundry Playroom Bathroom 7 bedrooms (one with ensuite) 3 x WC‚s Lift 5 bedrooms Lift There is a car park area adjacent to the entrance to the property and, as can be seen from the photographs, there is an enclosed private garden grounds to the rear of the property.

Downloads

Floor Plans: Download Plan
Brochure: Download

Want to know more? Fill in the form and a member of our team will be in touch soon.

Contact Details

Branch: Hamilton

Contact: Jacqueline Towie

Telephone: 01698 284939

Email: jacqueline.towie@dmhall.co.uk

Back to Properties

Let us support you with all your property requirements.

Get in touch today

Skip to content