Trustpilot
Skip to content

Development Opportunity 10 George Street, Oban, PA34 5SB

Status: Under Offer
George Street, Oban, PA34 5RX
Offers In Excess Of, £250,000
  • Sizes:
  • 4618 sqft,
  • 429.02 ㎡

Type: Purchase

Under Offer

Summary

  • Former aparthotel in Oban town centre.
  • Residential development opportunity.
  • Excellent transport connections.
  • Offers over £250,000 invited.

Location

The subjects are located on the south side of Georges Street within Oban town centre. Oban is the administrative and commercial centre of Argyllshire, the town being a gateway to the isles. The ferry terminal is located within a short distance. Glasgow lies approximately 91 miles south via the A85 and A82 trunk roads. Oban railway station, providing a direct link to Glasgow City Centre is within 4 minutes’ walk.

The immediate surrounding area is mixed in nature with predominantly commercial premises on the ground floor and residential dwellings on upper floors. Nearby occupiers include Waterstones, Gelatoburger, Gordons’ Chemists and Palace Hotel.

The approximate location of the subjects is shown on the appended street plan.

Description

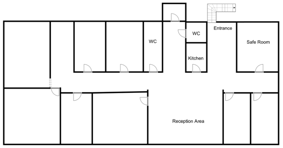
The subjects comprise first floor premises previously used as an aparthotel, within a four-storey tenement style building of sandstone construction and surmounted by a pitched roof. The building is Category ‘B’ Listed. Internally, the subjects are laid out to provide a reception/waiting area with 8 private rooms, kitchen and toilet facilities.

The subjects benefit from high ceilings and large bay windows providing exceptional natural daylight throughout the premises. Access to the premises is provided on the ground floor of George Street through a single recessed entrance door, protected by storm doors.

Downloads

Floor Plans: Download Plan
Brochure: Download

Want to know more? Fill in the form and a member of our team will be in touch soon.

Contact Details

Branch: Glasgow

Contact: Jonathan McManus

Telephone: 0141 332 8615

Email: jonathan.mcmanus@dmhall.co.uk

Back to Properties

Let us support you with all your property requirements.

Get in touch today

Skip to content