Trustpilot
Skip to content

FOR SALE • CLASS A1 (RETAIL/OFFICE) UNIT 10 • THE ITALIAN CENTRE • 168 INGRAM STREET • GLASGOW • G1 1DN

Unit 10, Glasgow, G1 1DN
Price on Application
  • Sizes:
  • 1425 sqft,
  • 132.39 ㎡

Type: Purchase

Summary

  • Well located office premises within popular Merchant City.
  • Attractive frontage facing private courtyard area.
  • Excellent public transport links available.
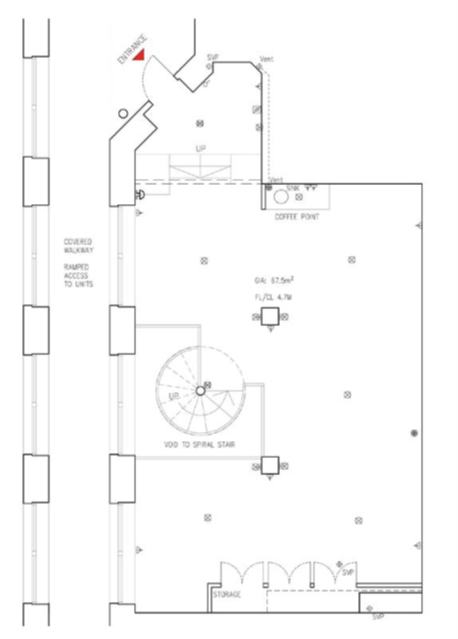
  • Total Net Internal Area of 132.29 sq.m. (1,425 sq.ft.) approx.

Location

The subjects are within the attractive Italian Centre located on the north side of Ingram Street, adjacent to the junction on John Street within Glasgow City Centre. Ingram Street is an established retail section in Merchant City. The surrounding area is mixed in nature, providing a high-end retail
thoroughfare, restaurants and bars. Buchanan Street is located within a short walk, providing access to various public transport routes from Buchanan Subway, Queen Street and Glasgow Central Stations. Nearby occupiers in the area include Singlend, Cruise, Committee Room No.9, END, The Corinthian Club and Kershkicks.

Description

The subjects are located over ground and lower ground floor within a 3-storey traditional sandstone building. Internally, the property comprises an open plan office at ground level, with a circular staircase located in the centre of the room which connects to the lower ground floor. The lower ground is open plan with a kitchenette. There is a shower cubical and toilet facilities located off the office. The unit benefits from excellent window display and natural lighting.

Downloads

Floor Plans: Download Plan
Brochure: Download

Want to know more? Fill in the form and a member of our team will be in touch soon.

Contact Details

Branch: Glasgow

Contact: Claire Hutton

Telephone: 0141 332 8615

Email: claire.hutton@dmhall.co.uk

Back to Properties

Let us support you with all your property requirements.

Get in touch today

Skip to content