Trustpilot
Skip to content

Class 1A – TO LET – 2 Sylvania Way, Clydebank

2 Sylvania Way, Clydebank, G81 1EA
£55,000 (per annum)
  • Sizes:
  • 7730 sqft,
  • 718.13 ㎡

Type: Lease

Summary

  • Attractive retail/office premises in the centre of Clydebank.
  • Excellent transport links.
  • Option to sub-divide.
  • Car parking available.
  • Competitive rent available from only £7 per sq.ft.

Location

The subjects are located on the north side of Sylvania Way, close to its junction with Chalmers Street within Clydebank. Glasgow city centre lies approximately 8 miles west. Sylvania Way is the primary pedestrian thoroughfare on the south of Clyde Shopping Centre, connecting Clydebank railway station and the bus interchange on Chalmers Street. Glasgow Road (A814) which provides access to Glasgow city centre, Renfrew Bridge and the M8 Motorway network is located within a short drive. There is a plentiful supply of local amenities including cafes, restaurants and independent shops. Nearby occupiers include Clydebank Co-operative Society, The Salvation Army, Virgin Money and Admiral.

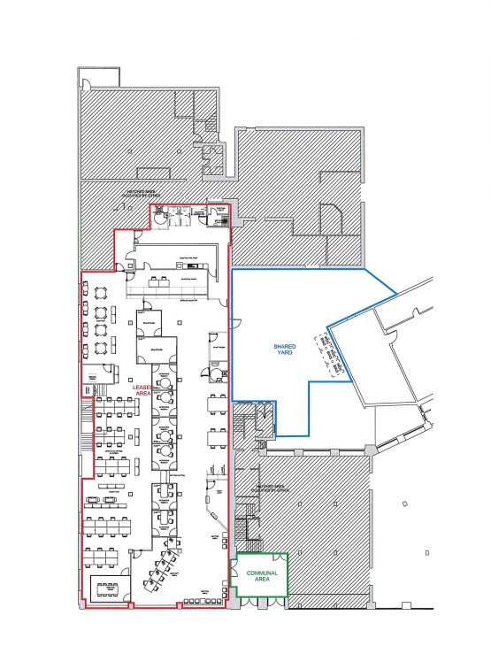
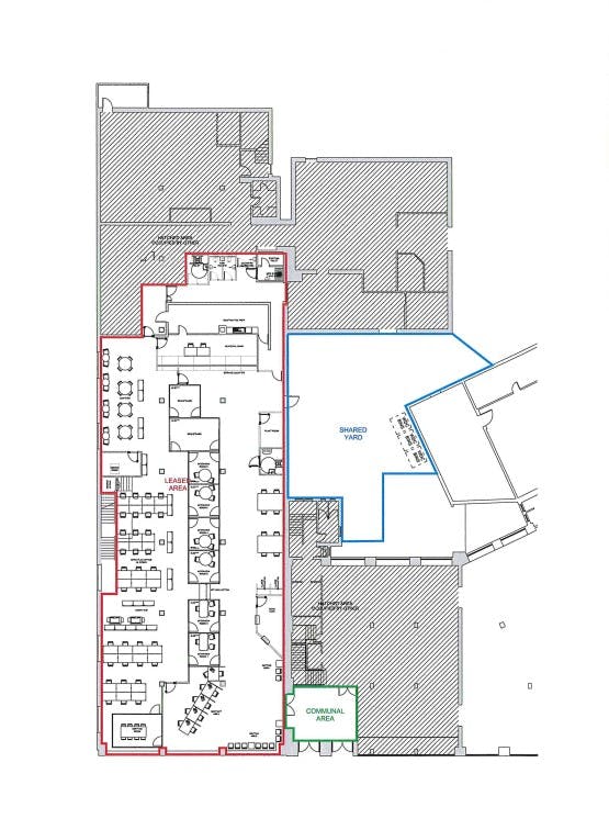
Description

The subjects occupy the ground floor within a 2-storey traditional building, surmounted by a flat roof. The subjects were previously occupied by West Dunbartonshire Council and are arranged to provide a spacious open plan office, with kitchen, toilet and shower facilities to the rear. Access is available from Sylvania Way via a double entrance door, protected by roller shutters within a shared entrance foyer which is interconnected with Clydebank Co-operative Society. Additional access to the premises is on the east elevation onto a shared yard, leading to a communal car park. Allocated parking may be provided on request.

Downloads

Brochure: Download

Want to know more? Fill in the form and a member of our team will be in touch soon.

Contact Details

Branch: Glasgow

Contact: Leah Sellers

Telephone: 0141 332 8615

Email: leah.sellers@dmhall.co.uk

Back to Properties

Let us support you with all your property requirements.

Get in touch today

Skip to content