Trustpilot
Skip to content

Business for Sale – Available – Hostel

Millhouse Hostel and Farmhouse, Cornaigmore, Isle of Tiree, PA77 6XA
O.I.R.O, £490,000
  • Sizes:
  • 3406 sqft,
  • 316.43 ㎡

Type: Purchase

Summary

  • ***REDUCED PRICE***
  • Spectacular and tranquil setting
  • 2/3 Bedroom farmhouse in move-in order
  • Highly successful 16-person Hostel
  • Watermill with prospects for renewable energy or further development subject to obtaining the necessary consents
  • Excellent lifestyle opportunity

Location

This fantastic opportunity situated in the picturesque and tranquil setting on the Isle of Tiree lies approximately 25 miles West of mainland Scotland, off the Ardnamurchan peninsula, itself the Westmost point of the British mainland. Tiree is accessed by way of the regular Calmac ferry crossings from Oban, via the Island of Coll. Alternatively, the island‚s airport is well served by regular connections to and from Glasgow airport. Millhouse Hostel lies towards the North coast of the island, close to Cornaigmore, and lies just West of the B8068 road route which links this area to Scarinish, on the East coast, the point where the ferry docks. Scarinish is approximately five miles from the subjects by road, the local airport approximately two and a half miles due South, making the accommodation readily accessible. Tiree has attractive unspoilt sandy beaches, and is the most Westerly island of the Inner Hebrides. The island is approximately 10 miles by three miles, is relatively flat, and the climate locally benefits from the nearby Gulf Stream, with above average hours of sunshine, lower rainfall and infrequent frosts reported.

Description

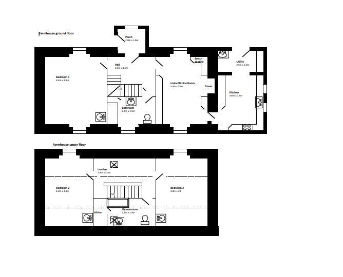
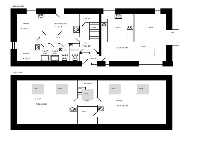
Millhouse Hostel which was originally a cow byre was converted around 2001. The property is of solid stone construction supplemented by a timber framed insert, beneath a pitched and tiled roof. Internally the subjects comprise at ground floor level, entrance hall, open plan lounge, dining and kitchen area, two bedrooms, two shower rooms and two toilets at the ground floor with a utility room. At first floor there are two bunk rooms/dormitories each sleeping six persons. Additionally on the site is the former Cornaig Mill and water wheel with the wheel being refurbished in 2006. The building itself consists of the The original mill, dating to the early 1800‚s and an attached kiln, added later. This provides a highly scenic backdrop to the property and dramatic landscaping. The vendor has researched renewable energy at this site, further information is available through the selling agents. The Watermill may also be suitable for development, subject to obtaining the necessary consents.

Downloads

Brochure: Download

Want to know more? Fill in the form and a member of our team will be in touch soon.

Contact Details

Branch: Edinburgh

Contact: Margaret Mitchell

Telephone: 0131 624 6130

Email: margaret.mitchell@dmhall.co.uk

Back to Properties

Let us support you with all your property requirements.

Get in touch today

Skip to content